精华 一个地产经纪的日记摘选(更新中)

2018年2月5日 星期一 零下9度

低库存导致买家没有更多的选择(2018年1月)


渥太华地产局报告指出,根据MLS上的数据:渥太华1月份物业销售量为712套,比去年同期的664套上涨了7.2%。近五年内,1月份物业的销售量平均值为638套。


“1月份是典型的淡季,新挂牌数最低。在过去5年,1月份挂牌的独立产权物业为1396套,共管物业为500套。今年则分别为994套和406套。比往年要低得多。”OREB主席RICK EISERT观察道。


“其实在整个2017年的二手房市场,就已经显现出了这种趋势。如果房源继续减少,那么价格就势必会被抬高。”RICK ELSERT继续陈述。

1月份独立产权物业均价为427,487加元,比去年同期提高8.8%。共管物业均价为263,744加元,同期下跌8.6%
物业局谨慎地认为数据仅可以用作对过去价格整体趋势的分析,而不应作为某个物业价值涨跌的风向标。


1月份卖出539套独立产权物业,173套共管物业。
相对去年同期,本月独立产权物业的销量降低了1.1%, 共管物业的销量从去年同期的119套飙升到今年的173套,增长了45%。

独立产权物业中,本月最热销的是价格在300,000加元到450,000加元区间的物业,占了47.5%市场份额。共管物业中,最热销的是价格在150,000加元到250,000加元区间的物业,占55%。

“对于卖家,现在是进入市场的好时机。因为库存低,可以得到更多的关注。”EISERT建议。
本年中,地产经纪协助租赁了166套房子。

综上所述:
1、由于库存少,价格势必会被抬高;
2、由于新政B20的影响,不少买方贷款额度减少,由此不得不舍弃价格越高越高的独立产权物业,而转向低端的共管物业。
3、对于卖方,现在可能是进入市场的好时机。因为库存低,可以得到更多关注。


IMG_8551.jpg





 
最后编辑:
2018年3月6日 星期三 又开始下雪了


渥太华还有房买吗?(2018年2月)


渥太华地产局报告指出,根据MLS上的数据:渥太华2月份物业销售量为979套,比去年同期的1002套下跌了2.3%。近五年内,2月份物业的销售量平均值为922套。

“毫无疑问地,如果有足够的房源,销量一定会提升不少。买家的需求在,而库存越来越少,这就造成了供求不足的问题。”OREB主席Ralph Shaw 总结道。“如果这种情况继续,那将会转为卖方市场,买方只能去抢有限的资源。”


“事实上,随着地价的上涨,自从去年物业销量破纪录后,开发商很难在城郊边缘找到足够多的价格便宜的地,而进行新楼盘开发。”Ralph Shaw指出:“基于这种情况,现在是卖房的好时机。”

2月份独立产权物业均价为429,600加元,比去年同期提高2.7%。共管物业均价为273,174加元,同期上涨5.6%。

物业局谨慎地认为数据仅可以用作对过去价格整体趋势的分析,而不应作为某个物业价值涨跌的风向标。

2月份卖出729套独立产权物业,250套共管物业。

独立产权物业中,本月最热销的是价格在300,000加元到450,000加元区间的物业,占了47%市场份额。共管物业中,最热销的是价格在150,000加元到250,000加元区间的物业,占56%。


“共管物业的兴起带动了总体销量的增加,基于这种需求,共管物业市场正在经历价格上的恢复。由于出租房源的缺乏,导致租客不得不转向购买低价位的共管物业,因而此类物业变得很抢手。”

“渥太华开始呈现出大都市所要面临着楼市竞争激烈的迹象。它始于供求不足,然后导致价格难于承受。我们要有一些先见之明,综合考虑如何支持和刺激楼市各个方面,从新楼盘开发到租赁市场等。”SHAW详细说明。

本年中,地产经纪协助租赁了348套房子。

IMG_1522.jpg

 
最后编辑:
2018年4月23日 星期一 春天终于来了


买家跑步进入春天旺季(2018年3月)

渥太华地产局报告指出,根据MLS上的数据:渥太华3月份物业销售量为1660套,比去年同期的1478套上涨了12.3%。近五年内,3月份物业的销售量平均值为1302套。


“库存继续下滑低于平均水平,物业在市场上滞留的时间由去年的54天下降到今年的43天。”OREB主席Ralph Shaw 总结道。



3月份独立产权物业均价为447,561加元,比去年同期提高8%。共管物业均价为275,592加元,同期上涨0.7%。


物业局谨慎地认为数据仅可以用作对过去价格整体趋势的分析,而不应作为某个物业价值涨跌的风向标。价格和条件会根据每个社区的不同而不同。

独立产权物业中,本月最热销的是价格在300,000加元到450,000加元区间的物业,占了46%市场份额。其中,500,000加元至750,000加元区间的物业强势增长到占了总数的21%。共管物业(CONDO)方面,最热销的是价格在175,000加元到274,999加元区间的物业,占51%。我们继续认为,由于出租房源的短缺,导致租客不得不转向购买低端物业。”



“总而言之,鉴于共管物业(CONDO)价格上的平衡和独立产权物业8%的合理增长,渥太华楼市依然健康而充满活力。”SHAW总结道。



今年以来,地产经纪协助租赁了551套房子。

6B957F6A-AB53-4E0D-922E-77560F924C67.jpeg



 

附件

  • 9D0F0619-0A3E-477F-BFB7-DD71C4BB89E5.png
    9D0F0619-0A3E-477F-BFB7-DD71C4BB89E5.png
    450.5 KB · 查看: 126
最后编辑:
最近没有更新吗?好贴啊
不好意思,这段时间旺季,比较忙。马上把这几个月的数据补上。



2018年7月7日 星期一 热


在冰雪四月天中,楼市依然火热(2018年4月)

渥太华地产局报告指出,根据MLS上的数据:渥太华4月份物业销售量为2032套,比去年同期的1788套上涨了13.6%。近五年内,4月份物业的销售量平均值为1704套。其中独立产权物业1616套,共管物业416套。

4月份独立产权物业均价为455,212加元,比去年同期提高4.2%。共管物业均价为269,294加元,同期上涨0.3%。



充足的就业机会以及相对收入而言合理的房价,让渥太华不但成为美丽而充满活力的首都,而且还是加拿大房价能够负担得起的城市之一。”SHAW认为。“当然价格和条件根据不同的地区而不同,但是楼市的稳定,能够提供给不同的投资买主更多的物业选择。"


“本月销量非常强势,渥太华一些热点地区房源短缺,和去年同期相比,库存下降23.7%。因为库存少,这就导致潜在卖家不确定能够买到另外一个物业,而不情愿出售现在的房子。”

“今年4月比往年要冷,这也是卖方推迟出售物业的一个原因。当然,其他因素也导致供少于求,比如房贷的收缩会影响到一些想以小房换大房的买家贷不到款。"

另一个原因是渥太华可用土地的限制供应,也减少了开发商的商机。我们需要更多的新房和二手房满足住户刚需。”

“一些需要换小房的屋主,比如婴儿潮那批人,因为城市建设方面的原因,买不到合适的小房子。他们更加倾向于住在一个带有车库和带有后院可以BBQ的独立屋,而不是市中心的公寓。市政府应该更多听取地产从业人员的意见,知道供需双方的需求。”

今年以来,地产经纪协助租赁了770套房子。

565DF737-2AF8-43EC-9AC3-04842398ED4A.jpeg


 
最后编辑:
2018年7月8日 星期日 28C

渥太华春季楼市沸腾(2018年5月)


渥太华地产局报告指出,根据MLS上的数据:渥太华5月份物业销售量为2279套,比去年同期的2294套下滑了0.7%。近五年内,5月份物业的销售量平均值为2041套。其中独立产权物业1794套,共管物业485套。

“虽然整个库存继续下滑,但是本月进入市场的挂牌数显现出典型的春天旺季迹象。本月库存周转很快,显示出楼市的健康发展。”OREB主席Ralph Shaw 总结道。


5月份独立产权物业均价为464,401加元,比去年同期提高6.3%。共管物业均价为281,247加元,同期上涨3.4%。

“在本年度的前5个月,独立产权物业上涨了8%, 共管物业上涨了6.5%。这对房主而言无疑是个振奋人心的消息,在过去的5年,年均价上涨幅度为3%。”

“自今年年初以来,经历了大部分物业的增值和建筑成本和开发费用增高,开发商重新调整了新房价格。也刺激了婴儿潮那批人卖房,让库存回归正常。” OREB主席Ralph Shaw 进一步说明。

“一旦库存处于历史低水平,尤其在一些热点区,就会造成价格上涨的压力。渥太华房屋需求大,因为可负担的房价以及过硬的基本设施。无论如何,这座城市需要有一个长期的房子供求计划去面对将来房价无法承受的风险。”SHAW提议。



独立产权物业中,本月最热销依然是是价格在300,000加元到450,000加元区间的物业,占了45%市场份额。其中,500,000加元至750,000加元区间的物业继续摘得头魁,占了总数的四分之一。

共管物业(CONDO)方面,最热销的是价格在150,000加元到250,000加元区间的物业,占49%。 而且,公寓占了共管物业销量52%,这来自于出租房源的短缺,只要能够拿出首付,每个月的支出应该比租房划算”。

今年以来,地产经纪协助租赁了1020套房子。
9B5D5B7A-5632-43F7-8491-D76169D2E1B1.jpeg

 
最后编辑:
2018年7月9日 星期一 持续高温


共管物业销量持续楼市的红火(2018年6月)


渥太华地产局报告指出,根据MLS上的数据:渥太华6月份物业销售量为2070套,比去年同期的2163套下滑了4.3%。近五年内,6月份物业的销售量平均值为1914套。其中独立产权物业1615套,比去年下降8%;共管物业455套,比去年同期增长11.5%。



“今年上半年渥太华楼市表现相当好,到目前为止,销量和去年上半年基本持平。共管物业一路领先,提高了16.8%。”OREB主席Ralph Shaw说明。


“共管物业销量的反弹是由于库存的短缺,尤其是低端独立产权物业的缺乏。比如,上半年价格$250,000-$275,000和$275,000-$300,000区间的独立产权物业销量分别减少了37%和41%, 而同时,同样价格的共管物业销量分别上涨了49%和22%。”SHAW进一步说明。


“可以看出,买方从低端独立产权物业转向购买他们可以负担的共管物业。曾经供过于求的共管物业现在成为缓解房源库存紧缺的功臣。”


“另外,随着建筑成本(比如水泥)和开发成本的上涨,以及技术工人工资的提高,新房价格很容易就超出了很多买家的预算。”SHAW继续:“他们只有选择搬到房价相对便宜的城郊居住。”


“物业在市场上滞留时间的减少显示出库存周转越来越快,原因在于本地房源的紧缺。想要提高挂牌数,我们需要鼓励屋主出卖他们的房子,尤其是婴儿潮那批人。不少人有这个意向,前提是我们能够提供给满足他们生活方式所需要的住所,很显然,市中心高层公寓的并不是他们的首选。”


到目前为止,独立产权物业在市场上滞留的平均时间为37天,比去年同期的46天降低了18%; 共管物业从去年71天减少到今年的52天,降低了27%。


6月份独立产权物业均价为449,200加元,比去年同期提高3.4%。共管物业均价为293,303加元,同期上涨1.2%。今年到目前为止,独立产权物业增长了5.2%,共管物业增长了1.1%。


“渥太华楼市继续以理性的步伐前进,毫无疑问,库存依然低,但是房价还是比较稳定和负担得起,不像其他城市波动那么大。”

今年以来,地产经纪协助租赁了1320套房子。

1CD231E6-5968-4287-9A9A-87512FA153AB.jpeg
 
最后编辑:
2018年8月9日 星期四 26C

渥太华楼市的炙热夏天(2018年6月)


渥太华地产局报告指出,根据MLS上的数据:渥太华7月份物业销售量为1614套,比去年同期的1524套上升了5.9%。近五年内,7月份物业的销售量平均值为1501套。其中独立产权物业1238套,比去年上涨3.6%;共管物业376套,比去年同期增长14.3%。

“渥太华共管物业市场持续向上积极地影响整个住宅物业的趋势,到去年到今日,共管物业的销量增长了16.5%。”OREB主席Ralph Shaw说明。“同样地,无论是独立产权物业还是共管物业,库存水平的提高缓解价格的压力。与去年同期相比,库存降低了16%, 但是年初时的数据为24%。”



7月份独立产权物业均价为441,206加元,比去年同期提高5%。共管物业均价为280,526加元,同期上涨5.3%。

“我们留意到郊区物业销量猛涨,尤其是西部。这不仅仅是有房源,还因为其他的吸引力,比如良好的社区环境,还算便利的交通和购物,好学校等。”SHAW进一步说明。



独立产权物业中,本月最热销的是价格在300,000加元到449,999加元区间的物业,市场占有率为45%。紧接着的是500,000加元到750,000加元区间的物业,占了20%。共管物业方面,最受欢迎的是价格在175,000加元到274,999加元区间的物业。



“渥太华楼市的健康发展体现出经济状况和就业良好,但是在好的社区和好的房子,依然需要竞价,多重OFFERS还是很常见。



今年以来,地产经纪协助租赁了1611套房子。
 
最后编辑:
2018年10月4日 星期四 温和明媚

夏天结束了,但是活跃的楼市没有结束(2018年8月)


渥太华地产局报告指出,根据MLS上的数据:渥太华8月份物业销售量为1586套,比去年同期的1535套上升了3.3%。近五年内,8月份物业的销售量平均值为1417套。其中独立产权物业1188套,和去年差不多;共管物业398套,比去年同期增长10.9%。

“渥太华楼市今年夏天比往年要繁忙,估计秋天也不例外。”OREB主席Ralph Shaw说。“可以预见,繁忙将会成为一种常态。”

8月份独立产权物业均价为433,684加元,比去年同期提高3.1%。共管物业均价为276,720加元,同期上涨2.2%。

渥太华的房价还是可以承受,增长也还在合理的范围内。库存非常低,与去年同期降低了18%。但是在有些区域,价格并没有受到很大影响。”

独立产权物业中,本月最热销的是价格在300,000加元到449,999加元区间的物业,市场占有率为45%。紧接着的是500,000加元到750,000加元区间的物业,占了22%。共管物业方面,最受欢迎的是价格在175,000加元到274,999加元区间的物业。

“对共管物业的需求越来越大,大概是由于出租房源的短缺。这可以消化掉过去留下的大量库存。也希望由此可以激励开发商尽快动工那些延期的项目。”

今年以来,地产经纪协助租赁了1890套房子。
 
2018年10月4日 星期四 温和明媚

秋天叶子开始下落,可是房价没落(2018年9月)

渥太华地产局报告指出,根据MLS上的数据:渥太华9月份物业销售量为1393套,比去年同期的1383套上升了0.7%。近五年内,9月份物业的销售量平均值为1303套。其中独立产权物业1046套,比去年下滑2.5%;共管物业347套,比去年同期增长11.9%。

“供不应求的局面还是没有改观,”OREB主席Ralph Shaw说。“共管物业继续一路高歌,年初至今,销量比2017年同期多出15%”

9月份独立产权物业均价为449,613加元,比去年同期提高7.9%。共管物业均价为282,781加元,同期上涨7.6%。

“经济因素在某些地区因房源短缺而导致房价上涨中起到了一些作用。共管物业价格随着独立产权物业的上涨而全面回升。”

“共管物业的库存在逐日减少,价格的回升会加速一些封存项目的启动。”

独立产权物业中,本月最热销的是价格在300,000加元到449,999加元区间的物业,市场占有率为46%。紧接着的是500,000加元到750,000加元区间的物业,占了22.5%。共管物业方面,最受欢迎的是价格在175,000加元到274,999加元区间的物业。

“租房的低空置率提升了共管物业的购买率,第一次购房者在进入市场前都面临这样的选择:是马上买可以负担的共管物业?还是等有更多钱后买独立屋?”

“虽然千禧一代乐于分享,但是他们可不愿意分析居住空间,他们更愿意拥有自己的独立住宅,只要能够负担房价,拥有物业永远是一个追求。”

今年以来,地产经纪协助租赁了2135套房子。


FDA05A73-2D26-4157-B75A-4C584910F315.jpeg


 
2018年11月20日 星期二 大雪

万圣节没有吓跑买家(2018年10月)


渥太华地产局报告指出,根据MLS上的数据:渥太华10月份物业销售量为1383套,比去年同期的1237套上升了11.8%。近五年内,10月份物业的销售量平均值为1223套。其中独立产权物业1059套,比去年上涨8.5%;共管物业324套,比去年同期增长24.1%。

“10月份的销量真实体现了2018年正在经历快节奏的市场。”OREB主席Ralph Shaw说。“在一些区域,物业在市场上没有徘徊。至今以来,独立产权物业滞留天数从45天缩短到39天,下降到了14%。共管物业滞留天数从68天缩短到51天,降低了24%。”

“房源短缺继续成为影响渥太华楼市的主要因素,如果我们回望2015和2016年,现在的库存不到当时的一半。和比年比较,共管物业库存下跌34.5%,独立产权物业下跌17.5%。”

“渥太华依然是房价可负担的城市之一,虽然独立产权物业均价$449,005万,同比增长5.7%,共管物业均价维持在$271350,同比增长0.6%”。

“另外,一些公寓的项目已经审核完毕,这将会抑制房价的进一步增长起到一点作用。当然,这也会给租房的人提供考虑买房的机会,毕竟出租房的库存比去年同期减少了32%。”

独立产权物业中,本月最热销的是价格在300,000加元到449,999加元区间的物业,市场占有率为43%。紧接着的是500,000加元到750,000加元区间的物业,占大约20%。共管物业方面,最受欢迎的是价格在175,000加元到274,999加元区间的物业,占53%。

今年以来,地产经纪协助租赁了2354套房子。

09BE4A8F-43F0-482B-AEA7-972B38ADBCFC.jpeg
 
最后编辑:
2018年12月12日 星期三 阳光明媚


渥太华:加拿大楼市的异类(2018年11月)


渥太华地产局报告指出,根据MLS上的数据:渥太华11月份物业销售量为1165套,比去年同期的1232套减少了5.4%。近五年内,11月份物业的销售量平均值为1055套。其中独立产权物业870套,比去年下跌7.2%;共管物业295套,只比去年同期多买1套,增长0.3%。

“由于全年库存低的原因,销量比去年同期下滑。如果有足够的选择和房源,销量一定会上去。”OREB主席Ralph Shaw说。“我所认识的每一个地产经纪,都有买家在等待合适的房源。而不少潜在的卖家也处在同一种情况,没有找到合适的房子,只好留守原居所。”

“独立产权物业均价$429,039万,同比增长2.6%。 共管物业均价$285,764,同比增长11.1%”。

“11月份,共管物业持续上涨,甚至比独立屋涨幅高。在过去的两年,强劲的销量消耗了以前的大量积压。由于出租市场的紧张,共管物业市场的兴起不是因为生活方式的选择,而仅仅是为了满足居住的需要。”

独立产权物业中,本月最热销的是价格在300,000加元到449,999加元区间的物业,市场占有率为47%。紧接着的是500,000加元到750,000加元区间的物业,占大约20%。共管物业方面,最受欢迎的是价格在175,000加元到274,999加元区间的物业,占47%。

“纵观整个加拿大的楼市,渥太华的表现真的是一个异类。我们的市场基础非常结实,在过去的十几二十年,一直都是平稳发展。”

“渥太华物业均价比全国均价低,但是就业率和收入水平偏高。毫无疑问,渥太华是全国最理想的工作,娱乐和生活的地方。”

今年以来,地产经纪协助租赁了2553套房子。

F97233AC-A745-4871-95B2-150E258E54F7.jpeg

 
最后编辑:
2019年1月7日 星期一 多云

渥太华各区介绍(之四)--Riverside South


Riverside South 在渥太华的南部,飞机场的西南方向。环境优美,RIDEAU 河蜿蜒流淌,绿树环绕。

具体范围:北到Lietrim road,南到Rideau Road ,东到Bowesville Road, 西到Rideau River. 整个RVIERSIDE SOUTH 以EARL ARMSTRONG ROAD 分成两部分。

image1.jpeg


2016年人口统计数为:14672。
家庭平均年收入:12-16万
房龄绝大部分建于2000年之后


小学:
Steve Maclean Public School (2017排名:503/3064)
Farley Mowat Public School((2017排名:1764/3064)
St. Jerome Catholic Elementary School (2017 排名:1413/3064)


中学:
Merivale school (2017 排名:115/747)
South Carleton school (2017 排名:68/747)
St. FRANCIS Xavier Catholic (2017 排名:115/747)


法语学校:
Bernard-Grandmitre (2017 排名:503/3064)
Michel-Dupuis (2017 排名:2623/3064)


交通情况:
开车到DOWNTOWN 不到半个小时,到渥太华机场不到15分钟。
公车94,99路车直达DOWNTOWN, 278 路车到亚纲困学院。



购物情况:
RIVERSIDE SOUTH PLAZA (有INDEPENENT,SHOPPERS 等 ), URBANDALE PLAZE (餐馆,银行等)
开车10分钟到河对面的BARRHAVEN MARKET PLACE 或者位于HUNT CLUB 的T&T 。



RIVERSIDE SOUTH 正在大开发,2021年轻轨开通,2031年预计人口超过:50000。

以下RIVERSIDE SOUTH 规划草图:

image13.jpeg

几个重点的说明:
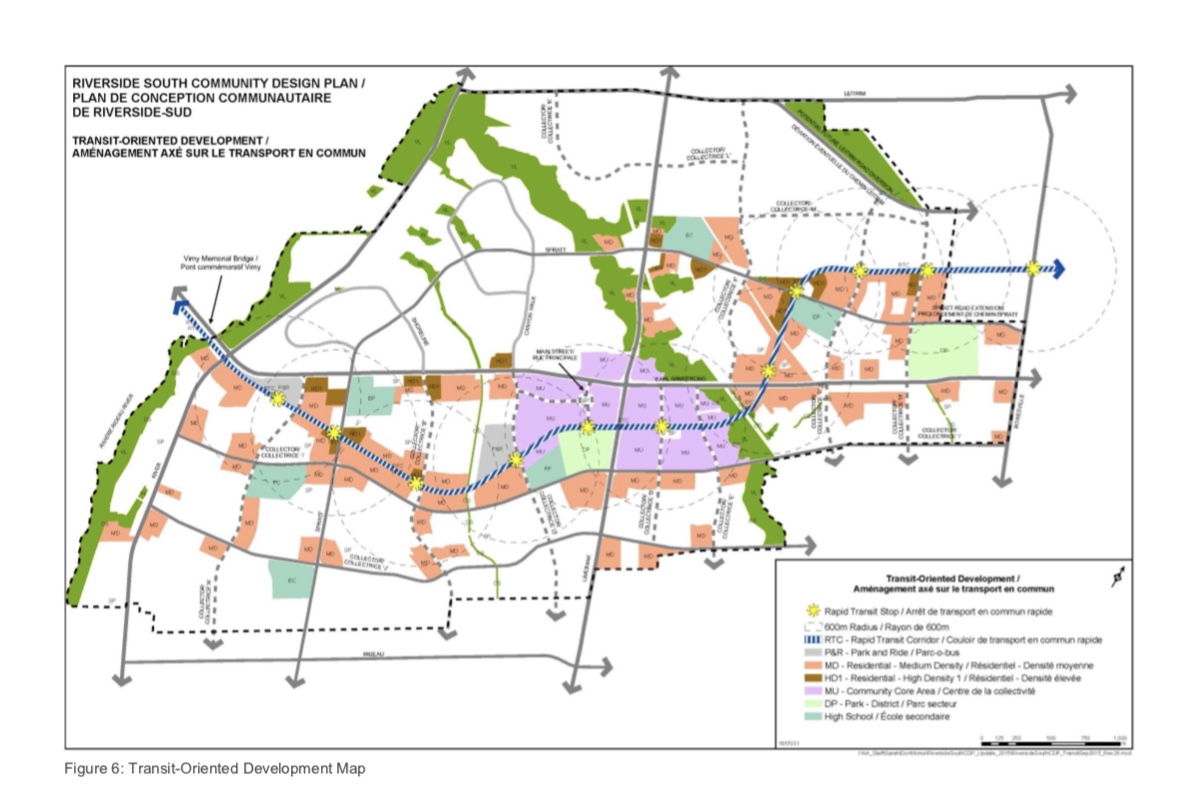
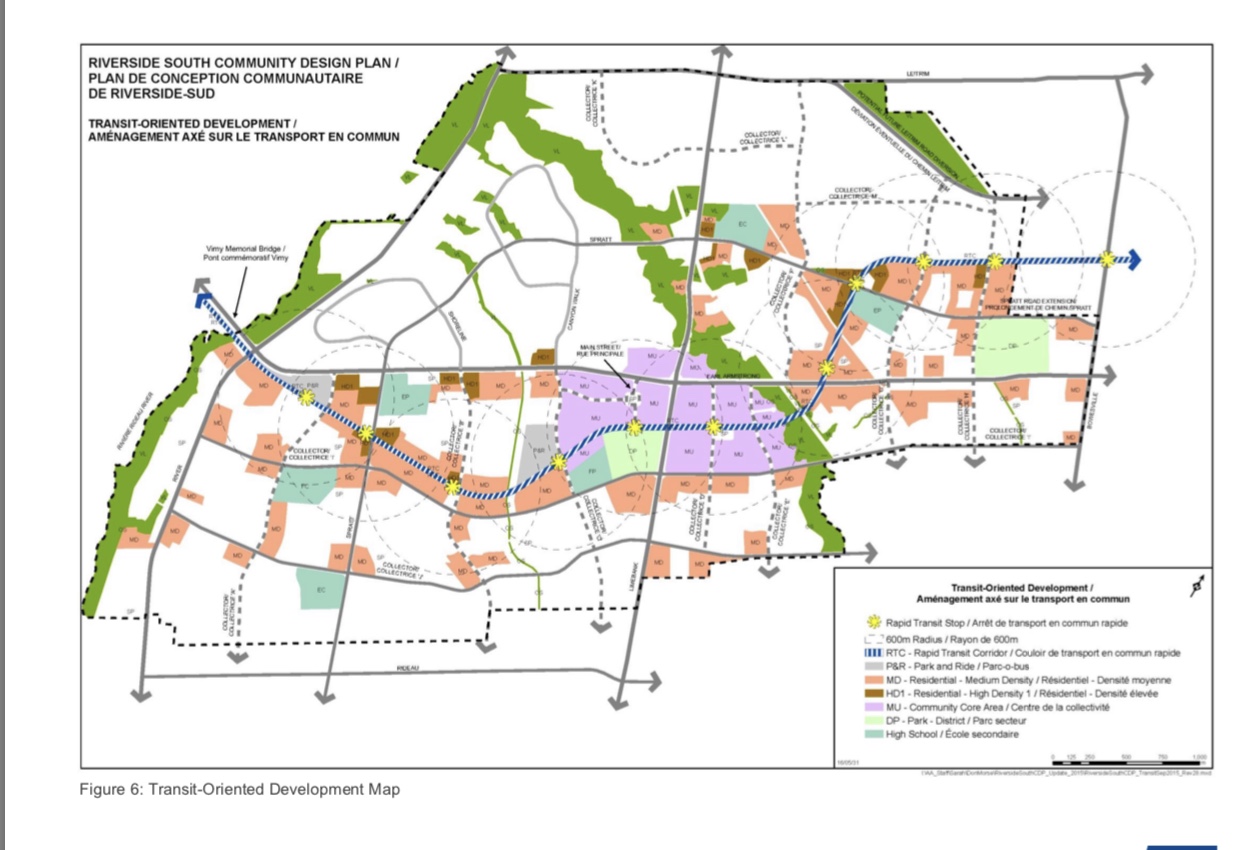
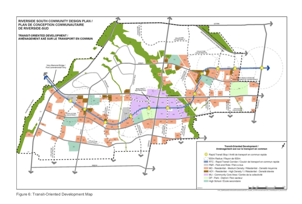
1, Transit-Oriented Development (TOD) 的模式 and The Rapid Transit Corridor
以公共交通枢纽为导向的社区发展模式,集住宅,办公,商业,文化教育等一体化的“方便用途”。
image2.jpeg

image10.jpeg

2, Employment Areas:
提供大量就业机会, 其中包括机场
、高新产业、行政管理和零售业等职位。
image7.jpeg


3,Density Distribution
LOW DENSITY: 以single home or semi-detached为主,22 户人家/公顷
Medium Density:以townhouse为主 , 38 户人家/公顷
High Density I: 以ground-oriented stacked townhouse units为主, 60户人家/公顷, 主要分布在公共交通系统的附近。
High Density II: 以apartments and non-ground oriented stacked townhouse unit为主, 80-120户人家/公顷。
image 密度.jpeg


4, COMMUNITY CORE
就像TOWN CENTER,以公共交通枢纽为核心,周围有高密度住宅,超市,零售店,餐馆,健身中心等设施。
image11.jpeg


5, 道路情况

主干道:RIVER ROAD, RIDEAU ROAD, LIMEBANK ROAD, EARL ARMSTRONG ROAD等
支干道:SPRATT ROAD等
次支干道:SHORELINE, CANYON WALK等

image9.jpeg



6, 绿化情况
image4.jpeg


7, 各小区学校情况
image6.jpeg
image5.jpeg


开发商:NH Home, Urbandale, Richcraft and Claridge

Townhouse的开盘时间预计在1月下旬, single home在2月份。
 

附件

  • image1.jpeg
    image1.jpeg
    205.9 KB · 查看: 83
  • image2.jpeg
    image2.jpeg
    232.1 KB · 查看: 83
  • image4.jpeg
    image4.jpeg
    262.1 KB · 查看: 82
  • image5.jpeg
    image5.jpeg
    354.2 KB · 查看: 85
  • image6.jpeg
    image6.jpeg
    414.8 KB · 查看: 77
  • image7.jpeg
    image7.jpeg
    230.3 KB · 查看: 88
  • image9.jpeg
    image9.jpeg
    184.9 KB · 查看: 82
  • image10.jpeg
    image10.jpeg
    123.3 KB · 查看: 80
  • image11.jpeg
    image11.jpeg
    248.7 KB · 查看: 82
  • image12.jpeg
    image12.jpeg
    198.8 KB · 查看: 80
  • image13.jpeg
    image13.jpeg
    273.5 KB · 查看: 84
  • image12.jpeg
    image12.jpeg
    198.8 KB · 查看: 80
最后编辑:
2019年1月11日 星期五 晴朗

2018年渥太华楼市年终总结


渥太华地产局报告指出,根据MLS上的数据:渥太华12月份物业销售量为663套,比去年同期的765套减少了13.3%。其中独立产权物业471套,比去年下跌15.7%;共管物业192套,比去年同期减低6.8%。

2018年成交量比2017年提高2.4%,2018年销量为:17476套,而2017年为:17065套。其中独立产权物业2018售出13418套,2017年为13478套;共管物业2018年售出4058套,比2017年的3587套增长了13.1%。

“近十年来,渥太华楼市一直平稳增长,但是在过去的两年,成交量忽然突飞猛进了12.6%。首都地区,因为出色的就业而成为加拿大房价最负担得起住房的大城市之一。”RALPH SHAW 认为。

“目前我们面临的最大问题是房源短缺。进入市场的独立产权物业不多,由此导致共管物业市场全面复苏和兴起。曾经停滞不前的新建高楼项目预计会有好的前景。”

“另外一个重要的影响2018年楼市的因素是贷款压力测试—政府的原意是为了打压加国两个主要楼市,但是却让有购房欲望的买家面临困难,尤其是首套房的买家。”

12月份独立产权物业均价$453,011万,同比增长4.7%。 共管物业均价$278,295,同比增长9%。年末的数据显示2018年独立产权物业均价为:$446,661,比2017年均价增长5.1%;共管物业均价$278,316, 比去年均价增长3.2%。

“由于供应有限,需求增加,我们预计2019年还是会面临房价上涨的压力。如果买家不介意通勤时间,在市郊置业,在价格可承受范围内,会有更多的选择。希望新建的以出租为主的楼房可以缓解住房的压力,尤其是开发商能够针对不同人不同需求而提供合适的住房。”

独立产权物业中,本月最热销的是价格在300,000加元到449,999加元区间的物业,市场占有率为45%。紧接着的是500,000加元到750,000加元区间的物业,占大约20%。共管物业方面,最受欢迎的是价格在175,000加元到274,999加元区间的物业,占55.7%。年底数据显示出,这两个占主导地位的物业的占有率分别为45.6%和49.8%。

今年以来,地产经纪协助租赁了2713套房子。
 
最后编辑:
后退
顶部